Крышка лотка тип II 0.75 – защита инженерных каналов от нагрузок и осадков
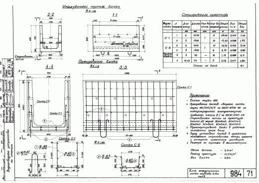
Крышка железобетонная тип II 0.75 используется для перекрытия лотков инженерных коммуникаций, прокладываемых в земле. Изделие изготавливается из тяжелого бетона с армированием стальной арматурой, что позволяет ему выдерживать значительные механические и климатические нагрузки. Такая крышка предотвращает попадание мусора, осадков и грунта в инженерные каналы, а также защищает кабели, трубопроводы и другие линии от внешнего воздействия. Размер изделия и точность геометрии обеспечивают плотное сопряжение с соответствующим лотком и надёжное распределение нагрузки.
Область применения
Крышки тип II 0.75 устанавливаются на сборные железобетонные лотки при прокладке кабельных трасс, трубопроводов, теплосетей и других инженерных коммуникаций. Их активно применяют на объектах гражданского и промышленного строительства, на территориях заводов, складов, логистических центров, вблизи автодорог. Благодаря высокой прочности крышка защищает магистрали от пешеходной и транспортной нагрузки, сохраняя функциональность инженерных систем в течение всего срока эксплуатации.
Преимущества железобетонной крышки
Основное преимущество крышки лотка тип II 0.75 — её долговечность и способность сохранять форму и прочность даже при многолетней эксплуатации в сложных условиях. Армированный бетон устойчив к температурным перепадам, воздействию влаги, ультрафиолета и химически агрессивных веществ. Заводская точность размеров исключает люфты и зазоры при установке, а также обеспечивает быструю укладку без необходимости дополнительной подгонки. Простота монтажа и совместимость с лотками соответствующего типа делают эту модель универсальным решением для наружных инженерных сетей.
Контроль качества
Крышка лотка тип II 0.75 проходит обязательный контроль прочности, влагостойкости, морозостойкости и точности геометрических параметров. При производстве применяются качественные компоненты — цемент, щебень, армирующий каркас из стали. Каждое изделие имеет паспорт соответствия и при необходимости сопровождается документацией по ГОСТ. Контроль ведётся в соответствии с требованиями нормативной базы для ЖБИ изделий, что обеспечивает стабильные характеристики партии.
Условия транспортировки и хранения
Крышки поставляются на поддонах или в штабелях с использованием деревянных прокладок между слоями. Перевозка осуществляется автотранспортом или спецтехникой с применением такелажного оборудования. Хранить продукцию следует на ровной, твёрдой поверхности, защищённой от подтопления и загрязнений. Соблюдение условий хранения позволяет избежать микротрещин и сколов до момента монтажа.
Где купить крышку лотка тип II 0.75
Компания «Блок-ЖБИ» предлагает купить крышку лотка тип II 0.75 с гарантией качества и оперативной доставкой. Все изделия производятся по нормативам, комплектуются сопроводительной документацией и доступны в нужных объёмах. Мы работаем с частными и корпоративными заказчиками, поставляем ЖБИ по Краснодару и другим регионам России. Оформите заказ онлайн или позвоните — наши специалисты помогут рассчитать объёмы и организовать логистику на объект.
Смотрите также:
| Варианты написания товара | 
|---|
| Крышка лотка тип II-0.75 | 
| Тип II-0.75 крышка | 
| Крышка лотка тип II0.75 | 
| Тип II0.75 крышка | 
| Тип II-0.75 | 
| Тип II0.75 | 
| Крышка лотка тип II-0.75 Альбом №984 | 
| Тип II-0.75 Альбом №984 | 
| Тип II0.75 Альбом №984 | 
| 
											ГОСТ/Серия
																					 | Альбом №984 | 
| 
											Длина, мм
																					 | 750 | 
| 
											Ширина, мм
																					 | 700 | 
| 
											Высота, мм
																					 | 70 | 
| 
											Масса, тонн
																					 | 0.07 | 
| 
											Объем бетона, куб.м
																					 | 0.028 | 
| 
											Геометрический объем, м.куб
																					 | 0.037 | 
| 
											Сталь, кг
																					 | 43 | 
| 
											Закладная 1
																					 | Сетка1 | 
Как купить
Процесс покупки железобетонных изделий у нас прост и удобен. Следуйте этим шагам:
- Выбор продукции: Ознакомьтесь с нашим ассортиментом и выберите необходимые железобетонные изделия.
- Консультация: Свяжитесь с нашим менеджером для получения консультации по выбору продукции и уточнения всех деталей. Вы можете позвонить нам или написать на электронную почту.
- Оформление заказа: После согласования всех деталей оформите заказ. Менеджер поможет вам заполнить все необходимые документы.
- Согласование доставки: После оформления заказа наш менеджер свяжется с вами для согласования условий и сроков доставки.
- Оплата: Выберите удобный способ оплаты. Мы предлагаем несколько вариантов, включая безналичный расчет.
- Получение товара: После выполнения всех условий заказа, вы получите железобетонные изделия в назначенное время и по согласованному адресу. При получении подпишите акт приема-передачи.
Если у вас возникли вопросы на любом этапе покупки, не стесняйтесь обращаться к нашим менеджерам!
Оплата
Мы принимаем только безналичные платежи и работаем исключительно с юридическими лицами. Пожалуйста, ознакомьтесь с условиями оплаты ниже:
- Способ оплаты: Все расчеты производятся безналичным путем. Мы не принимаем наличные.
- Счет на оплату: После оформления заказа вам будет выставлен счет, который необходимо оплатить в срок, указанный в документе.
- Реквизиты: Все необходимые банковские реквизиты будут предоставлены в счете. Убедитесь, что все данные указаны правильно для успешного перевода.
- Подтверждение оплаты: После осуществления платежа отправьте нам подтверждение, чтобы мы могли оперативно обработать ваш заказ.
- Получение документов: После полной оплаты вы получите все необходимые документы, включая акт выполненных работ, товарные накладные и сертификаты на продукцию.
Мы работаем с НДС и предоставляем все необходимые сертификаты и документы. Все гарантии будут прописаны в договоре, что обеспечивает прозрачность и надежность сотрудничества.
Если у вас есть вопросы по поводу процесса оплаты, не стесняйтесь обращаться к нашим менеджерам за помощью!
Наша оперативность — ваше удобство. Мы гарантируем своевременную доставку железобетонных изделий, что является ключевым фактором для успешной реализации ваших строительных проектов. Доставка осуществляется прямо к вашему объекту с учетом всех стандартов качества.
    Основные условия доставки:
    • Выбор тарифа: Вы можете выбрать способ расчета стоимости доставки — почасовой или по зонам.
    • Согласование: Менеджер свяжется с вами для уточнения деталей после оформления заказа.
    • Время на погрузку: Комплектация товара занимает от 1 до 3 дней в зависимости от объема.
    • Акт приема-передачи: Продукция передается по акту приема-передачи.
    Тарифы на доставку:
    Цены варьируются в зависимости от расстояния и региона. Все тарифы включают НДС. При неблагоприятных погодных условиях возможны небольшие изменения в стоимости.
    География доставки:
    Мы работаем по всей территории РФ и имеем 12 офисов и производств, чтобы обеспечить удобные условия для доставки.
Для точного расчета стоимости доставки обращайтесь к нашим менеджерам!


 
						 
						 
							