Описание плиты ПДН 2-3
Плиты дорожные неармированные (ПДН) Серия 3.503.1-91 применяются для устройства временных и постоянных дорожных покрытий, площадок, подъездных путей и других объектов с повышенной нагрузкой. Изделия изготавливаются из высокопрочного бетона без армирования стальной арматурой, что обеспечивает их прочность, устойчивость к нагрузкам и долговечность.
Применение плиты ПДН 2-3
Плита ПДН 2-3 используется как элемент дорожного покрытия для строительства временных дорог, площадок и подъездных путей с интенсивным движением транспорта. Она служит важной частью системы, обеспечивающей равномерное распределение нагрузки на основание и формирование ровной поверхности для движения. Для монтажа могут применяться дополнительные элементы: раствор, закладные детали и другие комплектующие.
Типы дорожных плит
Дорожные плиты подразделяются на несколько типов в зависимости от размеров и назначения:
- ПДН: плита дорожная неармированная;
- 1П: плита дорожная первого типа;
- 2П: плита дорожная второго типа;
- ПАГ: плита аэродромная.
Размеры зависят от типа: длина 3000–6000 мм, ширина 2000–3000 мм, толщина 140–240 мм.
Основные параметры, размеры и характеристики
- Длина, мм: 3000
- Ширина, мм: 2000
- Высота, мм: 140
- Геометрический объем, м³: 0,84
- Объем бетона, м³: 0,84
- Масса, тонн: 2,1
Дополнительные характеристики
- Класс бетона: В27,5 (марка М350)
- Марка по морозостойкости: F200–F300
- Марка по водонепроницаемости: W6–W8
- Технология изготовления: вибропрессование или формование с использованием высокопрочного бетона.
Нормы загрузки
- Норма загрузки в автотранспорт 20 т, шт: 9
Документы
- Нормативный документ: Серия 3.503.1-91
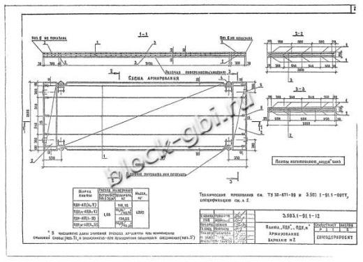
Расшифровка маркировки ПДН 2-3
Маркировка "ПДН 2-3" содержит следующую информацию:
- ПДН – плита дорожная неармированная;
- 2 – ширина плиты в метрах (2000 мм);
- 3 – длина плиты в метрах (3000 мм).
Условия транспортировки и хранения
Плиты ПДН 2-3 перевозятся автомобильным или железнодорожным транспортом с использованием специальных захватных устройств (строп). Хранение осуществляется на ровных площадках с твердым покрытием. Плиты устанавливаются горизонтально в штабель высотой не более 2,5 м. Для предотвращения повреждений между изделиями устанавливаются деревянные прокладки.
Контроль качества плиты ПДН 2-3
Каждая плита ПДН 2-3 проходит многоступенчатый контроль качества в соответствии с Серия 3.503.1-91. Проверяются:
- прочность бетона (не ниже класса В27,5);
- соответствие геометрических размеров проектным данным;
- морозостойкость и водонепроницаемость бетона;
- отсутствие трещин, сколов и других дефектов.
Заключение
Плита ПДН 2-3 – надежный и долговечный элемент для устройства дорожных покрытий, площадок и подъездных путей с повышенной нагрузкой. Благодаря строгому соблюдению требований Серия 3.503.1-91 и использованию качественных материалов, она обеспечивает прочность, устойчивость и долговечность конструкций. Для заказа качественных дорожных плит обращайтесь к производителям с сертификатами соответствия и опытом работы в сфере ЖБИ.
Смотрите также:
| Варианты написания товара |
|---|
| Плита ПДН 2-3 |
| ПДН 2-3 плита |
| Плита ПДН2-3 |
| ПДН2-3 плита |
| ПДН 2-3 |
| ПДН2-3 |
| Плита ПДН 2-3 Серия 3.503.1-91 |
| ПДН 2-3 Серия 3.503.1-91 |
| ПДН2-3 Серия 3.503.1-91 |
|
ГОСТ/Серия
|
Серия 3.503.1-91 |
|
Длина, мм
|
3000 |
|
Ширина, мм
|
2000 |
|
Высота, мм
|
140 |
|
Масса, тонн
|
2.1 |
|
Объем бетона, куб.м
|
0.84 |
|
Класс бетона
|
В27,5 |
|
Геометрический объем, м.куб
|
94.9 |
Как купить
Процесс покупки железобетонных изделий у нас прост и удобен. Следуйте этим шагам:
- Выбор продукции: Ознакомьтесь с нашим ассортиментом и выберите необходимые железобетонные изделия.
- Консультация: Свяжитесь с нашим менеджером для получения консультации по выбору продукции и уточнения всех деталей. Вы можете позвонить нам или написать на электронную почту.
- Оформление заказа: После согласования всех деталей оформите заказ. Менеджер поможет вам заполнить все необходимые документы.
- Согласование доставки: После оформления заказа наш менеджер свяжется с вами для согласования условий и сроков доставки.
- Оплата: Выберите удобный способ оплаты. Мы предлагаем несколько вариантов, включая безналичный расчет.
- Получение товара: После выполнения всех условий заказа, вы получите железобетонные изделия в назначенное время и по согласованному адресу. При получении подпишите акт приема-передачи.
Если у вас возникли вопросы на любом этапе покупки, не стесняйтесь обращаться к нашим менеджерам!
Оплата
Мы принимаем только безналичные платежи и работаем исключительно с юридическими лицами. Пожалуйста, ознакомьтесь с условиями оплаты ниже:
- Способ оплаты: Все расчеты производятся безналичным путем. Мы не принимаем наличные.
- Счет на оплату: После оформления заказа вам будет выставлен счет, который необходимо оплатить в срок, указанный в документе.
- Реквизиты: Все необходимые банковские реквизиты будут предоставлены в счете. Убедитесь, что все данные указаны правильно для успешного перевода.
- Подтверждение оплаты: После осуществления платежа отправьте нам подтверждение, чтобы мы могли оперативно обработать ваш заказ.
- Получение документов: После полной оплаты вы получите все необходимые документы, включая акт выполненных работ, товарные накладные и сертификаты на продукцию.
Мы работаем с НДС и предоставляем все необходимые сертификаты и документы. Все гарантии будут прописаны в договоре, что обеспечивает прозрачность и надежность сотрудничества.
Если у вас есть вопросы по поводу процесса оплаты, не стесняйтесь обращаться к нашим менеджерам за помощью!
Наша оперативность — ваше удобство. Мы гарантируем своевременную доставку железобетонных изделий, что является ключевым фактором для успешной реализации ваших строительных проектов. Доставка осуществляется прямо к вашему объекту с учетом всех стандартов качества.
Основные условия доставки:
• Выбор тарифа: Вы можете выбрать способ расчета стоимости доставки — почасовой или по зонам.
• Согласование: Менеджер свяжется с вами для уточнения деталей после оформления заказа.
• Время на погрузку: Комплектация товара занимает от 1 до 3 дней в зависимости от объема.
• Акт приема-передачи: Продукция передается по акту приема-передачи.
Тарифы на доставку:
Цены варьируются в зависимости от расстояния и региона. Все тарифы включают НДС. При неблагоприятных погодных условиях возможны небольшие изменения в стоимости.
География доставки:
Мы работаем по всей территории РФ и имеем 12 офисов и производств, чтобы обеспечить удобные условия для доставки.
Для точного расчета стоимости доставки обращайтесь к нашим менеджерам!

