Описание стеновой панели ПСТ 60-12-3
Стеновая панель (ПСТ 60-12-3) Серия 1.151.1-25 применяется для устройства наружных стен зданий различного назначения, включая жилые дома, офисные здания, производственные помещения и другие сооружения. Изделие изготавливается компанией ГК "БЛОК", которая специализируется на производстве и поставке железобетонных изделий в Краснодаре, из высокопрочного бетона с армированием стальной арматурой, что обеспечивает её прочность, устойчивость к нагрузкам и долговечность.
Применение панели ПСТ 60-12-3
Панель ПСТ 60-12-3 используется как элемент для строительства наружных стен в зданиях различного назначения. Она служит важной частью системы, обеспечивающей надёжность, безопасность и удобство эксплуатации конструкций. Для монтажа могут применяться дополнительные элементы: раствор, закладные детали и другие комплектующие.
Типы стеновых панелей
Железобетонные стеновые панели подразделяются на несколько типов в зависимости от размеров и назначения:
- ПСТ: панель стеновая тонкая;
- ПС: панель стеновая сплошная;
- ПСВ: панель стеновая с вентиляционным каналом;
- ПСК: панель стеновая каркасная.
Размеры зависят от типа: длина 5980–6000 мм, ширина 300–1200 мм, высота 1185–3000 мм.
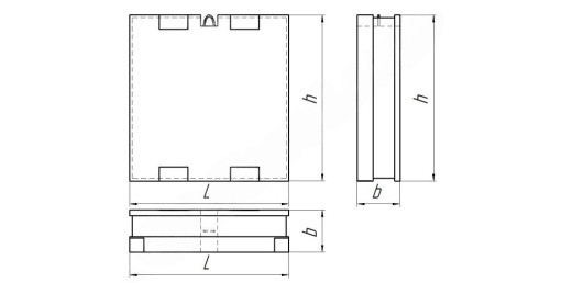
Основные параметры, размеры и характеристики
- Длина L, мм: 5980
- Ширина b, мм: 300
- Высота h, мм: 1185
- Масса, тонн: 2.7
- ГОСТ/Серия: Серия 1.151.1-25
Дополнительные характеристики
- Класс бетона: B25–B30 (марка М350–М400)
- Марка по морозостойкости: F150–F200
- Марка по водонепроницаемости: W4–W6
- Технология изготовления: вибропрессование или формование с использованием высокопрочного бетона.
Нормы загрузки
- Норма загрузки в автотранспорт 20 т, шт: 7
Документы
- Нормативный документ: Серия 1.151.1-25
Расшифровка маркировки ПСТ 60-12-3
Маркировка "ПСТ 60-12-3" содержит следующую информацию:
- ПСТ – панель стеновая тонкая;
- 60 – условная длина панели в дециметрах (5980 мм);
- 12 – условная высота панели в дециметрах (1185 мм);
- 3 – порядковый номер изделия в серии.
Условия транспортировки и хранения
Панели ПСТ 60-12-3 перевозятся автомобильным или железнодорожным транспортом с использованием специальных захватных устройств (строп). Хранение осуществляется на ровных площадках с твердым покрытием. Панели устанавливаются горизонтально в штабель высотой не более 2,5 м. Для предотвращения повреждений между изделиями устанавливаются деревянные прокладки.
Контроль качества панели ПСТ 60-12-3
Каждая панель ПСТ 60-12-3 проходит многоступенчатый контроль качества в соответствии с Серия 1.151.1-25. Проверяются:
- прочность бетона (не ниже класса B25);
- соответствие геометрических размеров проектным данным;
- качество армирования (наличие арматурного каркаса, толщина защитного слоя бетона);
- морозостойкость и водонепроницаемость бетона;
- точность расположения закладных элементов;
- отсутствие трещин, сколов и других дефектов.
Заключение
Стеновая панель ПСТ 60-12-3 – это надежный и долговечный элемент для устройства наружных стен в зданиях различного назначения. Благодаря использованию качественных материалов и современных технологий производства, она обеспечивает прочность, устойчивость и долговечность конструкций. Для заказа качественных железобетонных изделий обращайтесь к профессионалам своего дела – компании ГК "БЛОК".
Смотрите также:
| Варианты написания товара |
|---|
| Панель стеновая ПСТ 60-12-3 |
| ПСТ 60-12-3 панель |
| Панель стеновая ПСТ60-12-3 |
| ПСТ60-12-3 панель |
| ПСТ 60-12-3 |
| ПСТ60-12-3 |
| Панель стеновая ПСТ 60-12-3 Серия 1.151.1-25 |
| ПСТ 60-12-3 Серия 1.151.1-25 |
| ПСТ60-12-3 Серия 1.151.1-25 |
Как купить
Процесс покупки железобетонных изделий у нас прост и удобен. Следуйте этим шагам:
- Выбор продукции: Ознакомьтесь с нашим ассортиментом и выберите необходимые железобетонные изделия.
- Консультация: Свяжитесь с нашим менеджером для получения консультации по выбору продукции и уточнения всех деталей. Вы можете позвонить нам или написать на электронную почту.
- Оформление заказа: После согласования всех деталей оформите заказ. Менеджер поможет вам заполнить все необходимые документы.
- Согласование доставки: После оформления заказа наш менеджер свяжется с вами для согласования условий и сроков доставки.
- Оплата: Выберите удобный способ оплаты. Мы предлагаем несколько вариантов, включая безналичный расчет.
- Получение товара: После выполнения всех условий заказа, вы получите железобетонные изделия в назначенное время и по согласованному адресу. При получении подпишите акт приема-передачи.
Если у вас возникли вопросы на любом этапе покупки, не стесняйтесь обращаться к нашим менеджерам!
Оплата
Мы принимаем только безналичные платежи и работаем исключительно с юридическими лицами. Пожалуйста, ознакомьтесь с условиями оплаты ниже:
- Способ оплаты: Все расчеты производятся безналичным путем. Мы не принимаем наличные.
- Счет на оплату: После оформления заказа вам будет выставлен счет, который необходимо оплатить в срок, указанный в документе.
- Реквизиты: Все необходимые банковские реквизиты будут предоставлены в счете. Убедитесь, что все данные указаны правильно для успешного перевода.
- Подтверждение оплаты: После осуществления платежа отправьте нам подтверждение, чтобы мы могли оперативно обработать ваш заказ.
- Получение документов: После полной оплаты вы получите все необходимые документы, включая акт выполненных работ, товарные накладные и сертификаты на продукцию.
Мы работаем с НДС и предоставляем все необходимые сертификаты и документы. Все гарантии будут прописаны в договоре, что обеспечивает прозрачность и надежность сотрудничества.
Если у вас есть вопросы по поводу процесса оплаты, не стесняйтесь обращаться к нашим менеджерам за помощью!
Наша оперативность — ваше удобство. Мы гарантируем своевременную доставку железобетонных изделий, что является ключевым фактором для успешной реализации ваших строительных проектов. Доставка осуществляется прямо к вашему объекту с учетом всех стандартов качества.
Основные условия доставки:
• Выбор тарифа: Вы можете выбрать способ расчета стоимости доставки — почасовой или по зонам.
• Согласование: Менеджер свяжется с вами для уточнения деталей после оформления заказа.
• Время на погрузку: Комплектация товара занимает от 1 до 3 дней в зависимости от объема.
• Акт приема-передачи: Продукция передается по акту приема-передачи.
Тарифы на доставку:
Цены варьируются в зависимости от расстояния и региона. Все тарифы включают НДС. При неблагоприятных погодных условиях возможны небольшие изменения в стоимости.
География доставки:
Мы работаем по всей территории РФ и имеем 12 офисов и производств, чтобы обеспечить удобные условия для доставки.
Для точного расчета стоимости доставки обращайтесь к нашим менеджерам!

