Описание балки Б 1200.130.93
Балка (Б 1200.130.93) применяется для устройства несущих конструкций, таких как пролеты мостов, эстакад и других инженерных сооружений. Изделие изготавливается компанией ГК "БЛОК", которая специализируется на производстве и поставке железобетонных изделий в Москве, с использованием высокопрочного бетона класса B27.5 и армирования стальной арматурой, что обеспечивает её прочность, устойчивость к нагрузкам и долговечность.
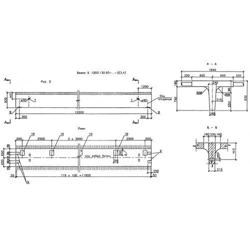
Нормативный документ: Инв.№ 54020-М.
Применение балки Б 1200.130.93
Балка Б 1200.130.93 используется для создания надёжных несущих конструкций, воспринимающих значительные нагрузки от транспорта, оборудования или пешеходов. Она служит важной частью системы, обеспечивающей безопасность, функциональность и долговечность объектов. Для монтажа могут применяться дополнительные элементы: раствор, закладные детали и другие комплектующие.
Типы балок
Железобетонные балки подразделяются на несколько типов в зависимости от назначения и конструкции:
- Б: балка;
- БП: балка пролётная;
- БУ: балка усиленная;
- БД: балка доборная.
Размеры зависят от типа: длина 12000–12050 мм, ширина 1940–1950 мм, высота 930–950 мм.
Основные параметры, размеры и характеристики
- Длина L, мм: 12000
- Ширина b, мм: 1940
- Высота h, мм: 930
- Масса, тонн: 12.1
- Объем бетона, м³: 4.82
- Класс бетона: B27.5 (марка М350)
- Геометрический объем, м³: 21.65
- Сталь, кг: 1186
Закладные элементы
- Закладная 1: Каркас К1200-Т25АIIIв
- Закладная 2: Сетка вута СВ-ТАI-1
- Закладная 3: Сетка вута СВ-ТАI-2
- Закладная 4: Сетка вута СВ-ТАI-3
Дополнительные характеристики
- Марка по морозостойкости: F200–F300;
- Марка по водонепроницаемости: W6–W8;
- Технология изготовления: формование с использованием высокопрочного бетона.
Нормы загрузки
- Норма загрузки в автотранспорт 20 т, шт: 1 (при наличии специального оборудования).
Расшифровка маркировки Б 1200.130.93
Маркировка "Б 1200.130.93" содержит следующую информацию:
- Б – балка;
- 1200 – условная длина изделия в дециметрах (12000 мм);
- 130 – условная ширина изделия в сантиметрах (1940 мм);
- 93 – условная высота изделия в сантиметрах (930 мм).
Условия транспортировки и хранения
Балки Б 1200.130.93 перевозятся автомобильным или железнодорожным транспортом с использованием специальных захватных устройств (строп). Хранение осуществляется на ровных площадках с твердым покрытием. Балки устанавливаются горизонтально в штабель высотой не более 2,5 м. Для предотвращения повреждений между изделиями устанавливаются деревянные прокладки.
Контроль качества балки Б 1200.130.93
Каждая балка Б 1200.130.93 проходит многоступенчатый контроль качества. Проверяются:
- прочность бетона (не ниже класса B27.5);
- соответствие геометрических размеров проектным данным;
- морозостойкость и водонепроницаемость бетона;
- точность расположения закладных элементов;
- отсутствие трещин, сколов и других дефектов.
Заключение
Балка Б 1200.130.93 – это надежный и долговечный элемент для устройства несущих конструкций, таких как пролеты мостов, эстакад и других инженерных сооружений. Благодаря использованию качественных материалов и современных технологий производства, она обеспечивает прочность, устойчивость и долговечность конструкций. Для заказа качественных железобетонных изделий обращайтесь к профессионалам своего дела – компании ГК "БЛОК".
Смотрите также:
| Варианты написания товара |
|---|
| Балка Б 1200.130.93 |
| Б 1200.130.93 балка |
| Балка Б 1200.130.93 Инв.№ 54020-М |
| Б 1200.130.93 Инв.№ 54020-М |
| Б 1200.130.93 |
| Балка Б 1200.130.93 ГОСТ |
| Б 1200.130.93 ГОСТ |
|
ГОСТ/Серия
|
Инв.№ 54020-М |
|
Длина, мм
|
12000 |
|
Ширина, мм
|
1940 |
|
Высота, мм
|
930 |
|
Масса, тонн
|
12.1 |
|
Объем бетона, куб.м
|
4.82 |
|
Класс бетона
|
В27.5 |
|
Геометрический объем, м.куб
|
21.65 |
|
Сталь, кг
|
1186 |
|
Закладная 1
|
Каркас К1200-Т25АIIIв |
|
Закладная 2
|
Сетка вута СВ-ТАI-1 |
|
Закладная 3
|
Сетка вута СВ-ТАI-2 |
|
Закладная 4
|
Сетка вута СВ-ТАI-3 |
Как купить
Процесс покупки железобетонных изделий у нас прост и удобен. Следуйте этим шагам:
- Выбор продукции: Ознакомьтесь с нашим ассортиментом и выберите необходимые железобетонные изделия.
- Консультация: Свяжитесь с нашим менеджером для получения консультации по выбору продукции и уточнения всех деталей. Вы можете позвонить нам или написать на электронную почту.
- Оформление заказа: После согласования всех деталей оформите заказ. Менеджер поможет вам заполнить все необходимые документы.
- Согласование доставки: После оформления заказа наш менеджер свяжется с вами для согласования условий и сроков доставки.
- Оплата: Выберите удобный способ оплаты. Мы предлагаем несколько вариантов, включая безналичный расчет.
- Получение товара: После выполнения всех условий заказа, вы получите железобетонные изделия в назначенное время и по согласованному адресу. При получении подпишите акт приема-передачи.
Если у вас возникли вопросы на любом этапе покупки, не стесняйтесь обращаться к нашим менеджерам!
Оплата
Мы принимаем только безналичные платежи и работаем исключительно с юридическими лицами. Пожалуйста, ознакомьтесь с условиями оплаты ниже:
- Способ оплаты: Все расчеты производятся безналичным путем. Мы не принимаем наличные.
- Счет на оплату: После оформления заказа вам будет выставлен счет, который необходимо оплатить в срок, указанный в документе.
- Реквизиты: Все необходимые банковские реквизиты будут предоставлены в счете. Убедитесь, что все данные указаны правильно для успешного перевода.
- Подтверждение оплаты: После осуществления платежа отправьте нам подтверждение, чтобы мы могли оперативно обработать ваш заказ.
- Получение документов: После полной оплаты вы получите все необходимые документы, включая акт выполненных работ, товарные накладные и сертификаты на продукцию.
Мы работаем с НДС и предоставляем все необходимые сертификаты и документы. Все гарантии будут прописаны в договоре, что обеспечивает прозрачность и надежность сотрудничества.
Если у вас есть вопросы по поводу процесса оплаты, не стесняйтесь обращаться к нашим менеджерам за помощью!
Наша оперативность — ваше удобство. Мы гарантируем своевременную доставку железобетонных изделий, что является ключевым фактором для успешной реализации ваших строительных проектов. Доставка осуществляется прямо к вашему объекту с учетом всех стандартов качества.
Основные условия доставки:
• Выбор тарифа: Вы можете выбрать способ расчета стоимости доставки — почасовой или по зонам.
• Согласование: Менеджер свяжется с вами для уточнения деталей после оформления заказа.
• Время на погрузку: Комплектация товара занимает от 1 до 3 дней в зависимости от объема.
• Акт приема-передачи: Продукция передается по акту приема-передачи.
Тарифы на доставку:
Цены варьируются в зависимости от расстояния и региона. Все тарифы включают НДС. При неблагоприятных погодных условиях возможны небольшие изменения в стоимости.
География доставки:
Мы работаем по всей территории РФ и имеем 12 офисов и производств, чтобы обеспечить удобные условия для доставки.
Для точного расчета стоимости доставки обращайтесь к нашим менеджерам!

