Опорная подушка ОП 1: надёжная опора для труб и лотков
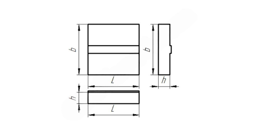
Опорная подушка ОП 1 — железобетонный прямоугольный блок размером 300×250×120 мм, весом около 18 кг и объёмом ~0,009 м³. Изготавливается по серии 3.006.1-8 (выпуск 31) из тяжёлого бетона класса В15, с закладной пластиной М1 и монтажными петлями. Предназначена для установки под трубы, кабели и лотки в инженерных каналах, тоннелях и теплотрассах.
Область применения
ОП 1 идеально подходит для поддержки опор труб и кабельных коробов внутри сборных подземных каналов. Подушка гарантирует точное положение и надёжную фиксацию оборудования, снижая риск смещения труб под действием грунта или вибраций от транспорта.
Преимущества изделия
- Устойчивость и надёжность: армированное исполнение и бетон В15 обеспечивают поддержку нагрузок и долгий срок службы.
- Климатическая стойкость: морозостойкость F100 и водонепроницаемость W4 позволяют использовать изделие в условиях влажности и температурных колебаний.
- Компактность и удобство монтажа: средние габариты и небольшой вес дают возможность установки вручную или с использованием техники.
- Закладная деталь и петли: упрощают монтаж и обеспечивают корректную фиксацию оборудования.
Контроль качества
Подушки проходят строгую проверку на прочность бетона, точность размеров (±5 мм), надёжность закладной детали и целостность поверхности. Каждая партию сопровождает паспорт качества, подтверждающий соответствие стандартам.
Условия транспортировки и хранения
Изделия перевозятся горизонтально, в штабелях с деревянными прокладками. Хранение рекомендуется на ровной сухой поверхности. Погрузочно-разгрузочные работы осуществляются без ударов и с учетом всех норм сохранности изделия.
Где купить опорные подушки ОП 1
Компания БлокЖБИ предлагает купить опорную подушку ОП 1 напрямую с заводаизготовителя. Мы предоставляем сертифицированную продукцию, техническую документацию и помощь в расчётах. Организуем доставку по Краснодару и в другие регионы России. Чтобы заказать опорную подушку для инженерных систем — звоните или оставляйте заявку на сайте, и мы оперативно организуем подтверждённый заказ!
Смотрите также:
| Варианты написания товара |
|---|
| Опорная подушка ОП-1 |
| ОП-1 подушка |
| Опорная подушка ОП1 |
| ОП1 подушка |
| ОП-1 |
| ОП1 |
| Опорная подушка ОП-1 Серия 3.006.1-2.87 |
| ОП-1 Серия 3.006.1-2.87 |
| ОП1 Серия 3.006.1-2.87 |
|
ГОСТ/Серия
|
3.006.1-2.87 |
|
Длина, мм
|
200 |
|
Ширина, мм
|
200 |
|
Высота, мм
|
90 |
|
Масса, тонн
|
0.004 |
|
Объем бетона, куб.м
|
0.01 |
|
Класс бетона
|
В15 |
Как купить
Процесс покупки железобетонных изделий у нас прост и удобен. Следуйте этим шагам:
- Выбор продукции: Ознакомьтесь с нашим ассортиментом и выберите необходимые железобетонные изделия.
- Консультация: Свяжитесь с нашим менеджером для получения консультации по выбору продукции и уточнения всех деталей. Вы можете позвонить нам или написать на электронную почту.
- Оформление заказа: После согласования всех деталей оформите заказ. Менеджер поможет вам заполнить все необходимые документы.
- Согласование доставки: После оформления заказа наш менеджер свяжется с вами для согласования условий и сроков доставки.
- Оплата: Выберите удобный способ оплаты. Мы предлагаем несколько вариантов, включая безналичный расчет.
- Получение товара: После выполнения всех условий заказа, вы получите железобетонные изделия в назначенное время и по согласованному адресу. При получении подпишите акт приема-передачи.
Если у вас возникли вопросы на любом этапе покупки, не стесняйтесь обращаться к нашим менеджерам!
Оплата
Мы принимаем только безналичные платежи и работаем исключительно с юридическими лицами. Пожалуйста, ознакомьтесь с условиями оплаты ниже:
- Способ оплаты: Все расчеты производятся безналичным путем. Мы не принимаем наличные.
- Счет на оплату: После оформления заказа вам будет выставлен счет, который необходимо оплатить в срок, указанный в документе.
- Реквизиты: Все необходимые банковские реквизиты будут предоставлены в счете. Убедитесь, что все данные указаны правильно для успешного перевода.
- Подтверждение оплаты: После осуществления платежа отправьте нам подтверждение, чтобы мы могли оперативно обработать ваш заказ.
- Получение документов: После полной оплаты вы получите все необходимые документы, включая акт выполненных работ, товарные накладные и сертификаты на продукцию.
Мы работаем с НДС и предоставляем все необходимые сертификаты и документы. Все гарантии будут прописаны в договоре, что обеспечивает прозрачность и надежность сотрудничества.
Если у вас есть вопросы по поводу процесса оплаты, не стесняйтесь обращаться к нашим менеджерам за помощью!
Наша оперативность — ваше удобство. Мы гарантируем своевременную доставку железобетонных изделий, что является ключевым фактором для успешной реализации ваших строительных проектов. Доставка осуществляется прямо к вашему объекту с учетом всех стандартов качества.
Основные условия доставки:
• Выбор тарифа: Вы можете выбрать способ расчета стоимости доставки — почасовой или по зонам.
• Согласование: Менеджер свяжется с вами для уточнения деталей после оформления заказа.
• Время на погрузку: Комплектация товара занимает от 1 до 3 дней в зависимости от объема.
• Акт приема-передачи: Продукция передается по акту приема-передачи.
Тарифы на доставку:
Цены варьируются в зависимости от расстояния и региона. Все тарифы включают НДС. При неблагоприятных погодных условиях возможны небольшие изменения в стоимости.
География доставки:
Мы работаем по всей территории РФ и имеем 12 офисов и производств, чтобы обеспечить удобные условия для доставки.
Для точного расчета стоимости доставки обращайтесь к нашим менеджерам!

